











Glasfiberpool Delta
Glasfiberpool Delta
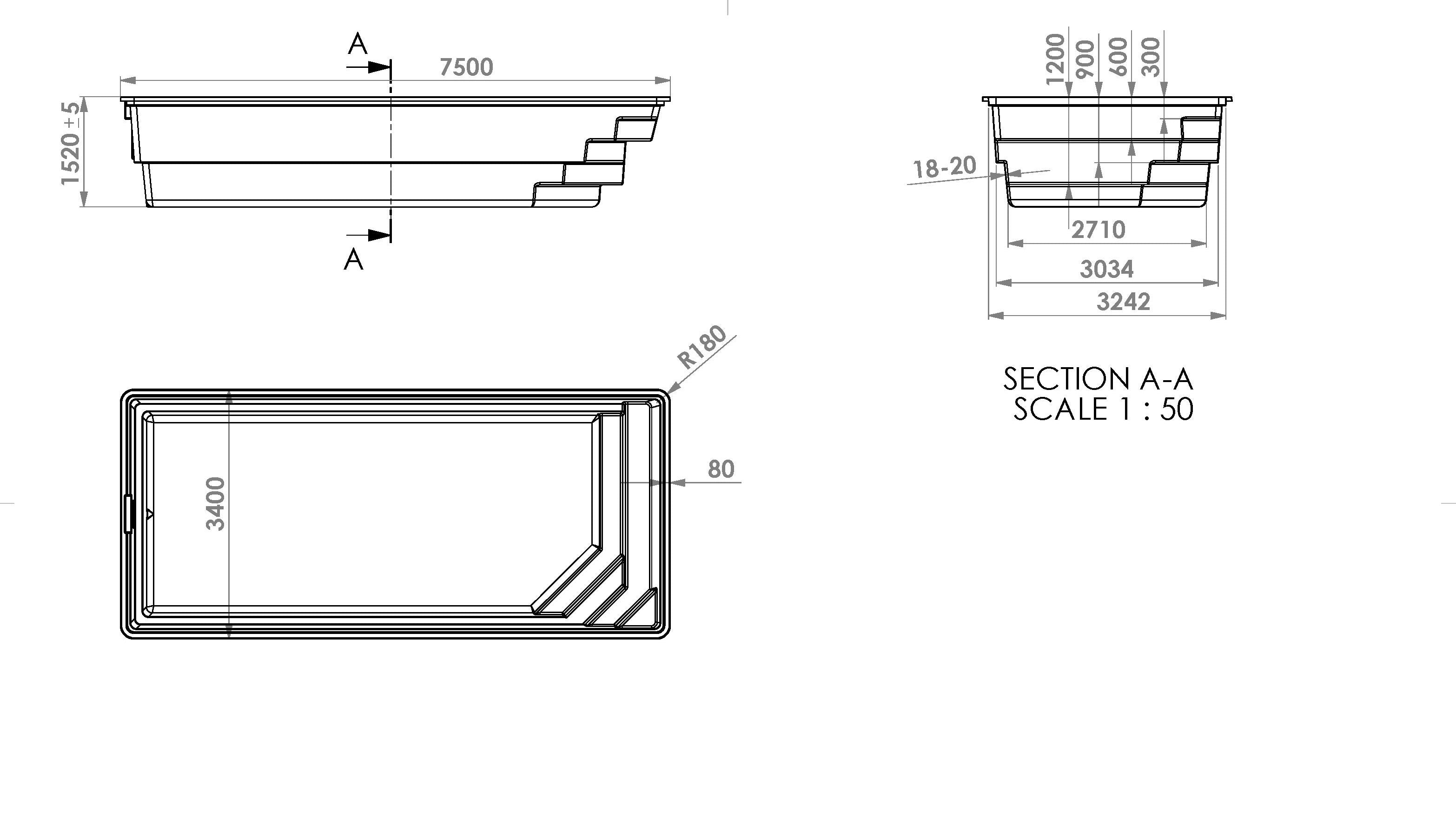
Glasfiberpoolen Delta är en mångsidig och högkvalitativ pool som passar perfekt för alla som vill ha en stilren och hållbar pool i sin trädgård. Delta finns i olika storlekar och färger, vilket gör det enkelt att hitta en modell som passar just ditt behov och din estetik.
En av de mest utmärkande egenskaperna hos Delta är dess förstärkta botten, känd som HoneyComb. Denna unika konstruktion ger poolen extra styrka och stabilitet, vilket gör att den tål hög belastning och är långlivad. HoneyComb-teknologin säkerställer att botten är robust nog att hantera dagligt slitage utan att kompromissa på säkerheten eller funktionaliteten.
Oavsett vilken storlek eller färg du väljer, kommer Delta att bli en imponerande och pålitlig del av din utomhusmiljö. Dess eleganta design och hållbara material gör den till ett utmärkt val för just din trädgård. Med Delta får du inte bara en plats för avkoppling och nöje, utan också en investering i kvalitet och långvarig njutning.
Detta ingår:
- Glasfiberpool Golf
- Frakt
- Belysningspaket: Vit
- Bräddavlopp
- Inlopp
- Kopplingar och slang 25m samt ett poolvårdspaket
Tillval:
- Filterset med sandfilter och cirkulationspump
- Pooltäckning: pooltak, lamelltäckning, barcover
- Teknikbox PP-plast 150x100x120cm
- Värmepump
- Saltklorinator
- Självdoseringssystem
- UV-lampa
Kontakta gärna oss så sätter via ihop en komplett offert till dig på info@norrlandspoolen.se eller telefon 026-37000
Välj alternativ












